02.
_HOME
_PROJEKTE
_PROFIL
_LEISTUNGEN
_KONTAKT
_IMPRESSUM
_bildung
_kultur
_büro und verwaltung
_denkmal
_industrie
_wohnen
_wettbewerbe
_büro und verwaltung
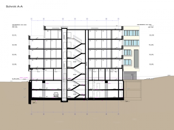
Neubau Büro- und Verwaltungsgebäude Hengstenbergareal Esslingen