_kultur
Machbarkeitsstudie zur Erweiterung des Stadtmuseums in Esslingen
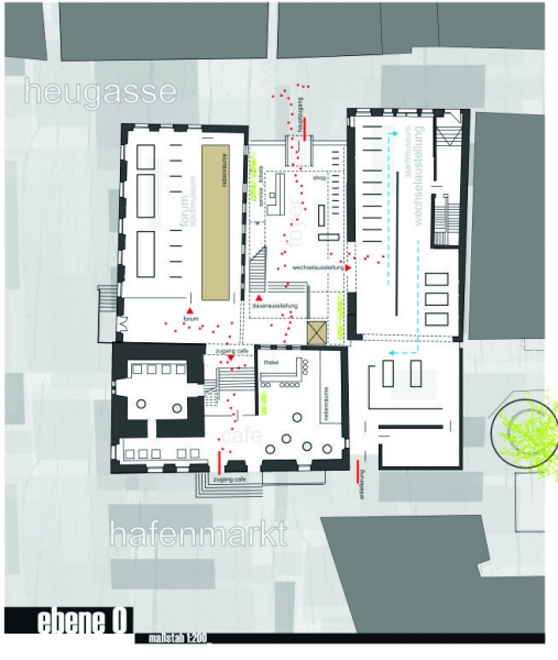
Für das Stadtmuseum Esslingen werden in verschiedenen Varianten Entwicklungs- und Erweiterungsmöglichkeiten zur Standortsicherung in der historischen Altstadt Esslingens erarbeitet.
Bauherr: Stadt Esslingen
Baujahr: 2012- 2013
Baukosten 6.000.000 €
